移住・定住促進
美咲町では、子育て世代を対象とした、中間管理住宅の入居者を募集しています。
通園・通学に便利な立地と負担を抑えた家賃で、子育てしやすい環境を支援します。
詳しい募集要項、申込方法につきましては、募集要項等をご覧ください。
ご不明な点は、下記問い合わせ先へ問い合わせください。
(補足)中間管理住宅とは、移住定住促進を目的として、町が町内の空き家を整備し、希望者に賃貸する住宅です。
美咲町中間管理住宅の設置及び管理に関する条例 (PDFファイル: 223.2KB)
美咲町中間管理住宅の設置及び管理に関する条例施行規則 (PDFファイル: 124.6KB)
今回募集する中間管理住宅はこちら
美咲町西川919-2
木造(一部鉄骨造)3階建
保育園・旭学園まで徒歩1分

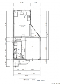
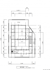
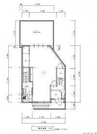
間取り図
1階
2階
3階
内観
1階 キッチン
2階 和室
2階 トイレ
2階 洗面所
2階リビング
2階 玄関
2階 風呂
3階 旭学園が見える景色
旭学園から近く通園・通学に便利
小さなお子さんの通園や、小・中学生のお子さんの通学には、住居環境の良さがとても大切ですよね。この物件は、保育園や学校が徒歩1分圏内にあり、毎日の送り迎えや通学がスムーズに行える立地の良さが大きな魅力です。朝の忙しい時間帯でも移動にかかる負担が少なく、お子さんも保護者の方も安心して毎日を過ごせます。
旭学園とは
美咲町立旭学園
みさキッズ あさひ
旭学園は、9年間を1つの施設で学ぶ小中一貫の義務教育学校で、自然豊かな環境に囲まれた、地域に根ざした温かい雰囲気が特色です。練磨・創造・敬愛を育むことを教育目標とし、学力の向上はもちろん、思いやりや協力する心を育てることを大切にしています。また、英語教育にも力を入れており、児童・生徒が小さなころから英語に親しめるよう、充実したカリキュラムが組まれています。
また、学園の近くに「みさキッズあさひ」(こども第3の居場所)が、令和7年に整備され、放課後の保護者が不在になりがちな時間帯でも、子どもたちは安心して遊び、宿題をしたりと友達と交流することができます。
募集要項
美咲町中間管理住宅 募集要項 (PDFファイル: 123.1KB)
お申し込みはこちら
添付の申請書および下記の書類を郵送また持参願います。
募集期間 令和7年10月9日~
- 美咲町中間管理住宅入居申込書(様式第1号)
美咲町中間管理住宅入居申込書(Wordファイル:21.4KB) - 確約書(様式第2号)
確約書(Wordファイル:19.7KB) - 暴力団員等ではないことの誓約書(様式第3号)
暴力団員等でないことの誓約書(Wordファイル:19.8KB) - 入居しようとするすべての方の住民票(世帯主と続柄が記載してあるもの)
- 収入証明書(申込者と同居予定者の収入がわかる書類(源泉徴収票など))
- 納税証明書(市町村などに税の滞納がないことを証明する書類)
- (注意)選考の結果、ご希望に添えない場合がございますことを、あらかじめご了承ください。
- (注意)応募から決定までお時間をいただく場合があります。
この記事に関するお問い合わせ先
地域みらい課
〒709-3717 岡山県久米郡美咲町原田2144番地1
電話番号:0868-66-1191
ファックス:0868-66-2038
メールフォームによるお問い合わせ
