○美咲町小規模給水施設整備事業補助金交付要綱
平成17年3月22日
告示第9号
(趣旨)
第1条 この告示は、水道及び飲料水供給施設等の区域外に住居を有する者が、家庭用飲料水を確保するため小規模な給水施設整備を行った者に対し補助を行い、住民の生活安定に資するためにこれを定める。
(補助の対象)
第2条 町長は、この告示に定めるところにより水源の新設、改良、導配水管の布設、揚水設備その他給水に必要な事業費に対し予算の範囲内で補助金を交付するものとする。ただし、屋内工事費は除くものとする。
2 前項に定める補助事業は、美咲町水道事業及び下水道事業の設置等に関する条例(令和元年美咲町条例第33号)第2条第2項第1号に定める給水区域及び飲料水供給施設区域外における事業を対象とする。ただし、給水区域に指定された後、補助事業等の関係から長期間給水開始が不可能な地区にあってはこの限りでない。
(補助率及び端数計算)
第3条 採択事業に対する補助率は、町長が査定した事業費の2分の1以内とする。ただし、休乢・毘沙門給水施設利用組合地区の補助率は、査定事業費とする。
2 その他地域の補助金の最高限度額は、次のとおりとする。
(1) 給水戸数 1戸のとき 200,000円以内
(2) 給水戸数 2戸から5戸まで 400,000円以内
(3) 給水戸数 6戸以上 500,000円以内
3 補助金の額に1,000円未満の端数が生じた場合は切捨てとする。
(補助申請)
第4条 この告示に基づく補助金を受けようとする者(以下「補助事業者」という。)は、補助事業承認申請書(様式第1号)に必要書類を添付して、町長に提出しなければならない。
2 町長は、前項の申請があったときは、その内容を調査のうえ採否を決定し補助事業者に通知するものとする。
(工事完了の届出、補助金の請求)
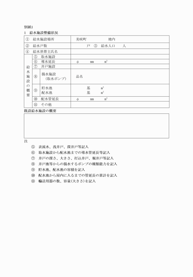
第5条 採択された補助事業が完了した場合は完了届(様式第2号)に経費の明細、完成写真その他参考資料を添付して補助金の請求をしなければならない。
(完了検査、補助金の交付)
第6条 町長は、完了届を受理したときは、書類の審査及び工事の検査を行ったうえ、補助金の交付を決定する。
2 補助事業者は、書類審査、工事検査について立会いを求められたときは立会いしなければならない。
附則
1 この告示は、平成17年3月22日から施行する。
2 この告示は、令和9年3月31日(以下「失効日」という。)限り、その効力を失う。ただし、失効日前にこの告示の規定により補助金の交付決定又は交付を受けた者については、この告示は、失効日以後も、なおその効力を有する。
附則(平成25年11月13日告示第51―1号)
この告示は、公布の日から施行する。
附則(令和2年3月18日告示第18号)
この告示は、令和2年4月1日から施行する。
附則(令和4年3月30日告示第27号)
この告示は、令和4年4月1日から施行する。
附則(令和6年3月6日告示第15号)
この告示は、令和6年4月1日から施行する。
附則(令和6年3月28日告示第36号)
この告示は、令和6年4月1日から施行する。







